Fuji elevator

Panorama Lift    Floor Plans and Spec Sheets

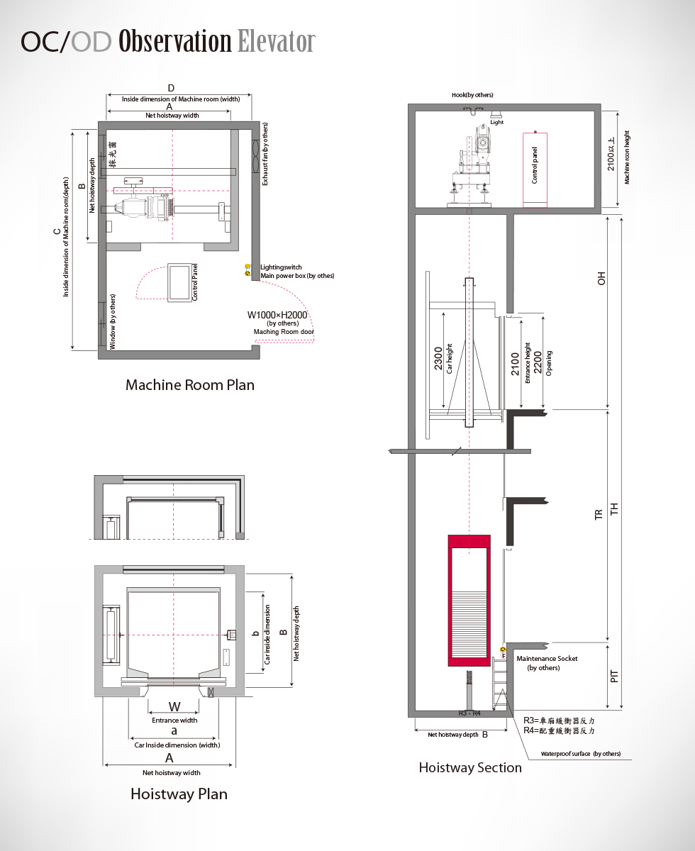
Product specifications, dimensions, if you need to adjust, please contact the company's sales staff...

Note : All dimensions and the specifications are subject to changewithout notice.
(If the content is different, please follow the government announcement)

  • OB Floor Plans
  • OB Specification Table
  • OC/OD Floor Plans
  • OC/OD Specification Table

Panorama Lift